Gotowy projekt domu energooszczędnego z poddaszem użytkowym i pojedynczym garażem, umieszczonym w bryle budynku. Układ funkcjonalny przewiduje otwartą strefę dzienną na parterze, na którą składa się salon z kominkiem i kuchnia z jadalnią oraz dodatkowy pokój, który można wykorzystać jako gabinet, lub sypialnię. Na parterze przewidziano ponadto małą toaletę dla gości. Pojedynczy garaż łączy się z kotłownią zlokalizowaną pod schodami. Na poddaszu przewidziano 4 wygodne sypialnie z dostępem do balkonów oraz komfortową łazienkę. Dzięki zwartej bryle i minimalizacji ścian nośnych jest tani i szybki w budowie. To doskonała propozycja dla 4-6 osobowej rodziny oraz interesujący obiekt dla deweloperów oraz inwestorów realizujących osiedla szeregowe, lub inne większe skupiska zabudowań jednorodzinnych.
Projekt ZB12
Powierzchnia:
138,0 / 164,8 m²
- Opis
- Dane techniczne
- Rzuty i Plany
- Item 1
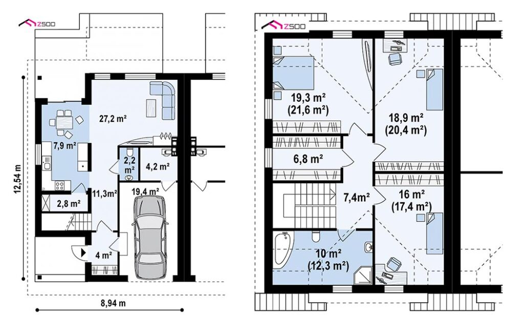
Parter 59,6 / 79,0 m² Kuchnia 7,9 m² Spiżarka 2,8 m² Hol + schody 11,3 m² Pom. gosp. 4,2 m² Sień 4,0 m² Garaż 19,4 m² WC 2,2 m² Salon + jadalnia 27,2 m² Poddasze 78,4 / 85,8 m² Pokój 19,3 m² Pokój 18,9 m² Pokój 16,0 m² Łazienka 10,0 m² Hol 7,4 m² Garderoba 6,8 m² - Item 2
Dane techniczne:
Powierzchnia użytkowa / netto 138,0 / 164,8 m² Powierzchnia garażu 19,4 m² Powierzchnia zabudowy 112,1 m² Kubatura 426,4 m³ Wysokość domu 9,45 m Kąt nachylenia dachu 38° Powierzchnia dachu 173,26 m² Wysokość ścianki kolankowej 1 m Liczba pokoi 4 Typ domu murowany Instalacja grzewcza:
W projekcie gaz, rekuperacja Energia pierwotna (Ep) 90,5 kWh/m²/rok Energia końcowa (Ek) 73,7 kWh/m²/rok Minimalne wymiary działki:
Szerokość 15,94 m Długość 20,54 m Wymiary elewacji frontowej 8,94 m - Item 2


