HOMEKONCEPT 74 to nowoczesna willa z płaskim dachem i dwustanowiskowym garażem, o powierzchni użytkowej powyżej 300 metrów kwadratowych. Wyróżnikiem tego spektakularnego projektu domu jest ozdobne belkowanie okalające bryłę, które podkreśla przewrotny charakter budynku.
Ta prosta, a zarazem nowoczesna bryła z przeszkleniami podporządkowana została liniom i kątom prostym. Na wykończenie elewacji wybrano tynk silikonowy połączony z deską z egzotycznego modrzewia syberyjskiego, który charakteryzuje się dużą wytrzymałością na działanie warunków pogodowych. Idealnym dopełnieniem jest ciemna stolarka okienno-drzwiowa oraz szklane balustrady tarasowe. Skrupulatnie wykorzystano tutaj duże przeszklenia, dzięki którym z każdego pomieszczenia rozpościera się piękny widok na ogród.
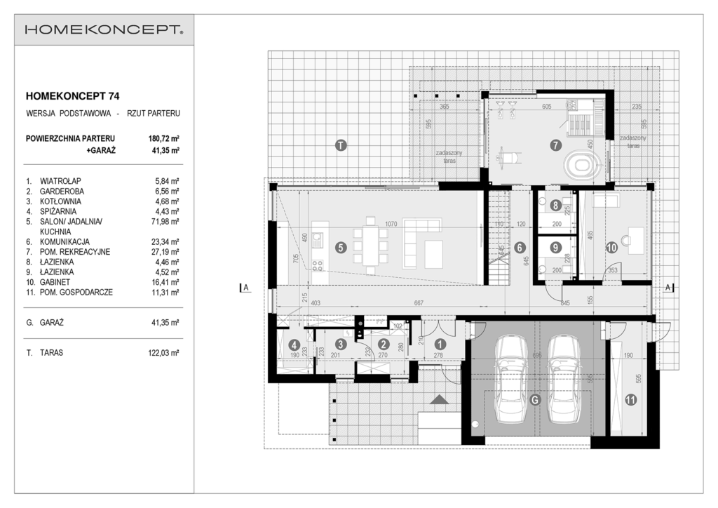
HOMEKONCEPT 74 to dwukondygnacyjna willa o powierzchni użytkowej ponad 300 metrów kwadratowych. Po przekroczeniu progu domu, po lewej stronie od wejścia usytuowano w jednym ciągu wiatrołap, garderobę, kotłownię oraz sąsiadującą bezpośrednio z kuchnią spiżarnię. Natomiast po prawej stronie od wiatrołapu rozmieszczono wejście do dwustanowiskowego garażu, z przylegającym do niego pomieszczeniem gospodarczym po całej długości ściany. Na przestrzeń parteru składa się w głównej mierze otwarta przestrzeń strefy dziennej – kuchnia w modelu otwartym z optymalną organizacją stref roboczych zorganizowanych wokół wyspy, jadalnia oraz salon. Rozmieszczenie ich na powierzchni przeszło 70 metrów kwadratowych gwarantuje funkcjonalność przestrzeni mieszkalnej oraz komfort podczas jej użytkowania.
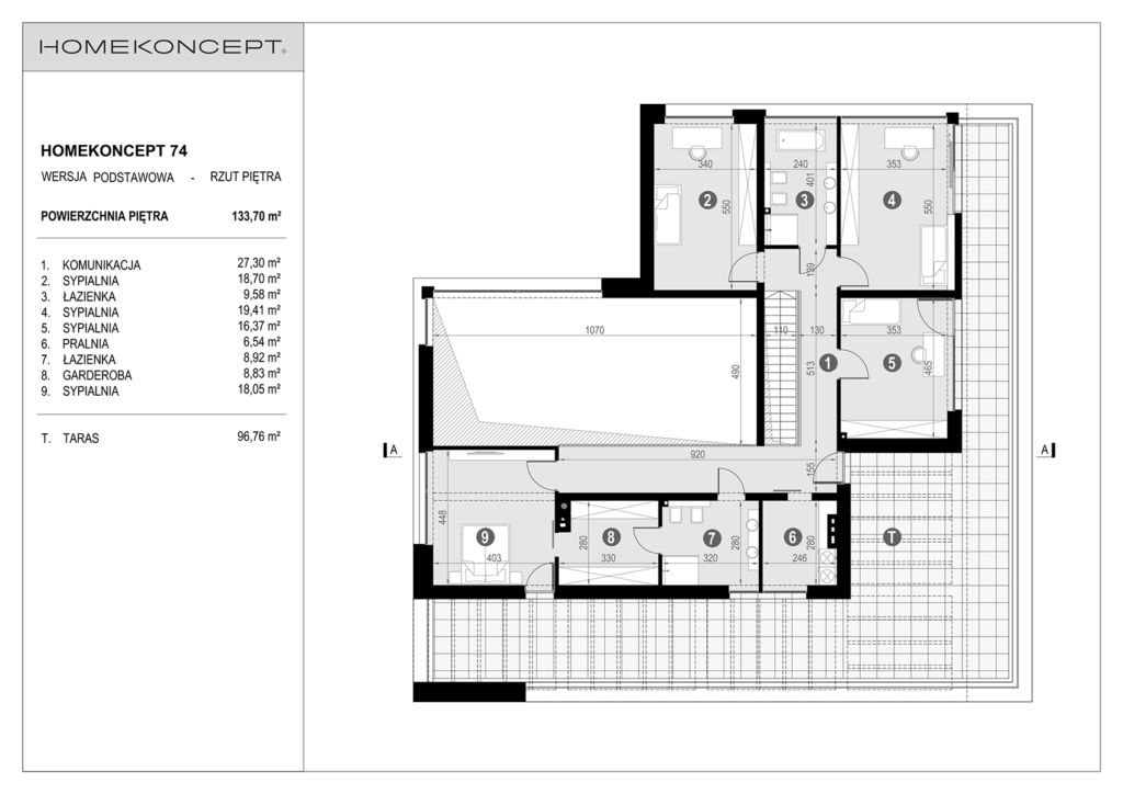
Po prawej stronie od strefy wyodrębniono pokój na gabinet oraz ogólnodostępną łazienkę, natomiast w głębi domu zlokalizowano pomieszczenie rekreacyjne z osobnym pokojem kąpielowym. Ta dodatkowa przestrzeń daje możliwość dowolnego zagospodarowania np. na prywatną siłownię lub też strefę relaksu z sauną i jacuzzi. Dodatkowe udogodnienie stanowią dwa obustronne wyjścia na zadaszony taras. Na piętrze nie mogło z kolei zabraknąć kompleksu pomieszczeń master bedroom, umieszczonych po przeciwległej stronie względem trzech pozostałych pokoi prywatnych. Nad tarasami na piętrze zaprojektowano nowoczesne belkowanie, które okala dwie sąsiadujące ze sobą ściany domu. Tego rodzaju konstrukcja z belkowaniem prezentuje się niezwykle efektownie – wyróżnia się lekkością i minimalizmem, a ponadto stwarza ciekawą grę światłem.







