HOMEKONCEPT 60 stanowi interesującą propozycję nowoczesnej willi, idealną dla dużej rodziny. Stylowy i komfortowy projekt domu jednorodzinnego z piętrem HomeKONCEPT 60 zachwyca dużymi przeszkleniami oraz atrakcyjnie zaplanowanymi wnętrzami.
Gotowy projekt luksusowej rezydencji HOMEKONCEPT 60 to prostokątna bryła z garażem wysuniętym przed lico budynku. Dom przyciąga wzrok nowoczesną elewacją skomponowaną z dwubarwnego tynku, która harmonizuje z antracytową dachówką oraz ciemną stolarką okienną i drzwiową. Tym samym dom prezentuje się elegancko i niezwykle współcześnie. Otaczające całość typowe dla HOMEKONCEPT białe belkowanie przepięknie uatrakcyjnia budynek, a dwukondygnacyjne duże przeszklenia dodają mu ponadczasowego charakteru. Przeszklenia te dodatkowo perfekcyjnie doświetlają wnętrze dziennym światłem i gwarantują fenomenalny widok na najbliższą okolicę. Miłośnikom przydomowej zieleni z pewnością przypadnie do gustu przestronny taras, będący naturalnym przedłużeniem strefy dziennej. Częściowo zadaszony i osłonięty nowoczesną pergolą, sprawdzi się idealnie jako rodzinna strefa relaksu lub jadalnia na świeżym powietrzu, również w niepogodę.
Na etapie projektowania nowoczesnej willi HOMEKONCEPT 60 zadbano o dodatkowe docieplenie ścian zewnętrznych i wyposażono go w wentylację mechaniczną z odzyskiem ciepła. W przyszłości pozwoli to znacząco obniżyć koszty ogrzewania budynku i czyni z HOMEKONCEPT 60 energooszczędny projekt domu.
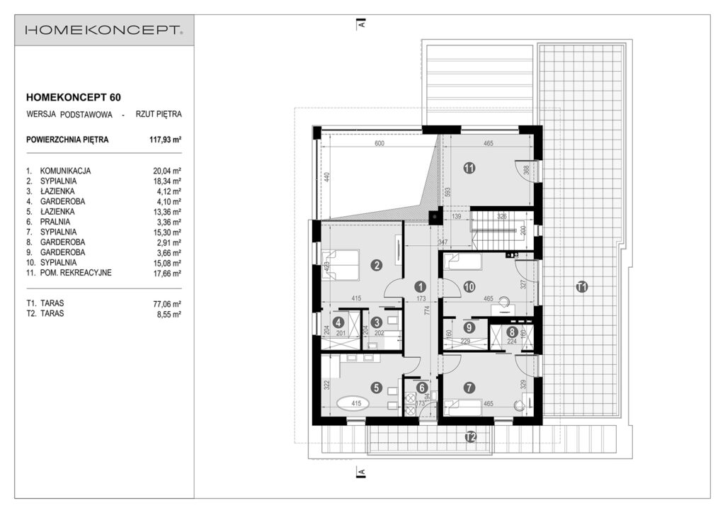
HOMEKONCEPT 60 cechują zaprojektowane w przemyślany sposób, funkcjonalne i dające mieszkańcom szerokie możliwości aranżacyjne wnętrza. Na parterze mieści się duża strefa dzienna, w której skład wchodzi: duży salon z wyjściem na taras, słoneczna jadalnia i otwarta kuchnia z praktyczną spiżarnią. Antresola nad salonem w połączeniu z dwukondygnacyjnymi przeszkleniami niesamowicie uatrakcyjnia wnętrze, dodając mu uroku, przestronności i nowoczesności. Na parterze domownicy znajdą także przytulny gabinet z wyjściem na taras. W zależności od potrzeb, z łatwością można zaaranżować go także jako pokój gościnny lub dodatkową sypialnię. Przestrzeń parteru projektu willi HOMEKONCEPT 60 dopełnia część gospodarczo-użytkowa: wiatrołap z garderobą, łazienka, dwustanowiskowy garaż, kotłownia oraz pomieszczenie gospodarcze. Piętro naszego nowoczesnego domu stanowi prywatną strefę domowników. Czekają tu na nich trzy komfortowe sypialnie (w tym apartament małżeński z własną łazienką, garderobą i widokiem na salon poprzez przeszkloną ścianę przy antresoli), przestronna łazienka z wanną i prysznicem, duża pralnia oraz pomieszczenie rekreacyjne. Pomieszczenie rekreacyjne można zaaranżować jako domową siłownię, pokój zabaw dla dzieci lub na przykład pokój telewizyjny czy domową bibliotekę. Dwie mniejsze sypialnie również posiadają prywatne garderoby. Na piętrze domu znajdują się dwa piękne tarasy dostępne z kilku pomieszczeń.







